- Proyecto nº 035 -
FUENTE: Biblioteca Pública Virtual
Escuela Técnica Superior de Ingeniería
Universidad de Sevilla
© Es obligatorio el respeto de los derechos de autor de este documento.
El presente proyecto tiene por objeto realizar el diseño de las instalaciones necesarias en un taller de vehículos situado en la provincia de Sevilla, de acuerdo a la legislación vigente con objeto de obtener de los órganos competentes de la Administración Pública los correspondientes permisos administrativos y licencias para su ejecución.
En el diseño de todas las instalaciones, el autor ha pretendido conseguir que el taller, objeto de este proyecto, funcione de una forma eficiente y sostenible, asegurando las mejores condiciones de trabajo y seguridad para los operarios del taller.
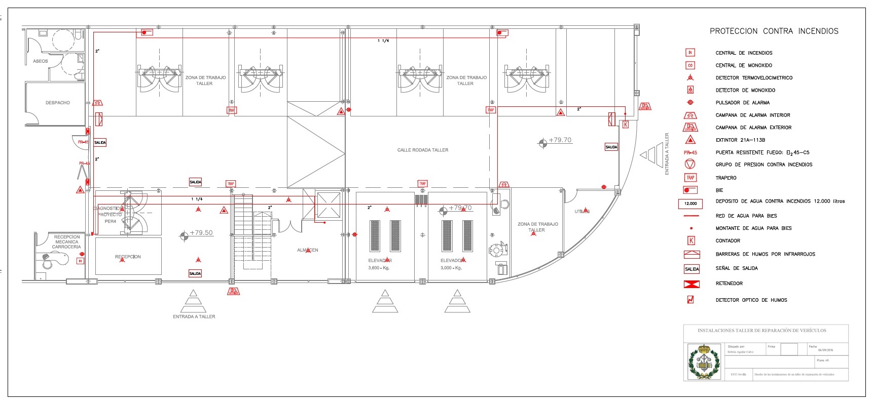
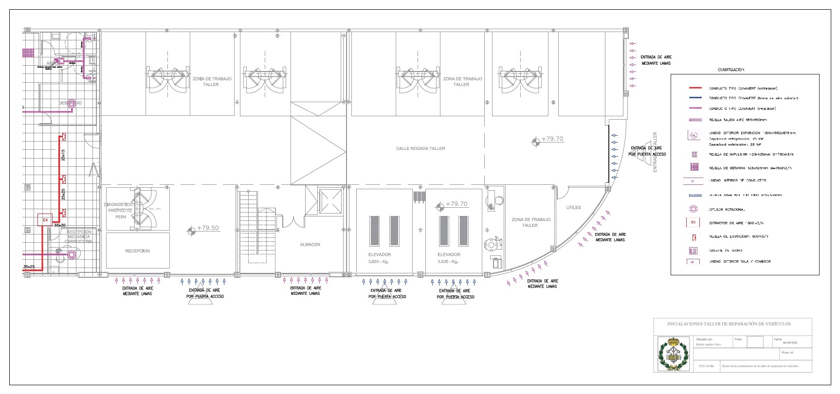
En el proyecto se incluye el diseño en detalle de las instalaciones de protección y seguridad contra incendios, las instalaciones de electricidad, climatización, la red de abastecimiento y distribución de agua, la red de saneamiento, así como los cálculos necesarios que justifiquen la seguridad estructural de la nave donde se emplaza el taller.
El autor también incluye en el proyecto un estudio de calidad para todo el proceso, desde la recepción de materiales, hasta las pruebas finales una vez terminado, así como la gestión de los residuos generados durante la ejecución del proyecto de acuerdo a la normativa actual.
— Biblioteca de Proyectos —
Proyecto de Diseño de las Instalaciones de un Taller de Reparación de Vehículos
FUENTE: Biblioteca de Ingeniería de la Universidad de Sevilla
›› Memoria y Anexos de cálculos
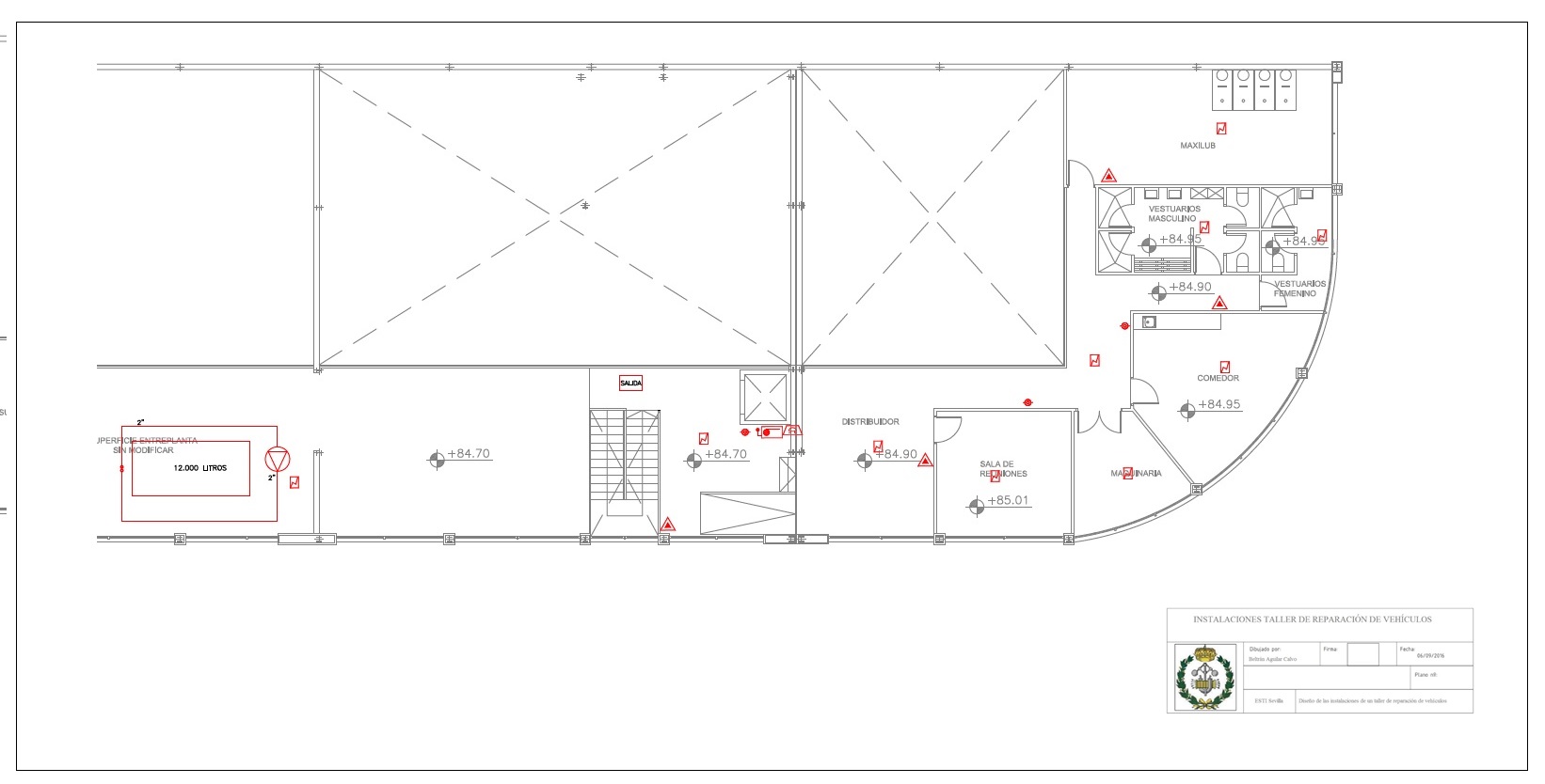
›› Plano nº 1: Situación y emplazamiento
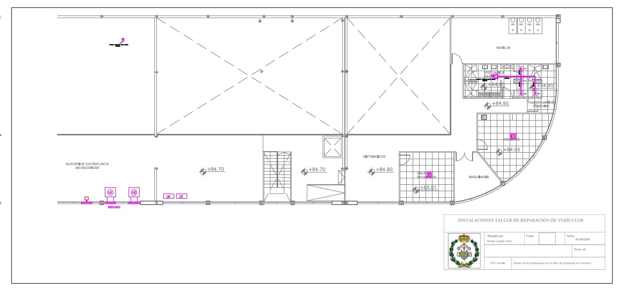
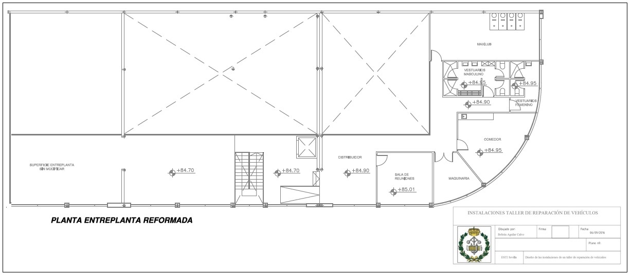
›› Plano nº 2: Entreplanta reformada
›› Plano nº 3: Planta baja reformada
›› Plano nº 4: Dimensiones y cotas. Planta alta
›› Plano nº 5: Dimensiones y cotas. Planta baja (I)
›› Plano nº 6: Dimensiones y cotas. Planta baja (II)
›› Plano nº 7: Escaleras de acceso
›› Plano nº 8: Saneamiento
›› Plano nº 9: Instalaciones de agua. Planta alta
›› Plano nº 10: Instalaciones de agua. Planta baja
›› Plano nº 11: Instalaciones de climatización. Planta alta
›› Plano nº 12: Instalaciones de climatización. Planta baja
›› Plano nº 13: Instalaciones de contra incendios. Planta alta
›› Plano nº 14: Instalaciones de contra incendios. Planta baja
›› Plano nº 15: Instalaciones eléctricas. Planta alta
›› Plano nº 16: Instalaciones eléctricas. Planta baja
›› Plano nº 17: Esquema unifilar (I)
›› Plano nº 18: Esquema unifilar (II)
›› Plano nº 19: Esquema unifilar (III)

Programa de Colaboración
Ahora puedes colaborar en el sostenimiento de esta web realizando un pequeño donativo
Gracias por tu colaboración
Hermenegildo Rodríguez Galbarro
Editor y Responsable de esta Web. [+info]
Información y consulta:
Hermenegildo Rodríguez Galbarro
info@ingemecanica.com - Tel. 646 166 055